Moderna Villa con vista Lago - Bardolino (ref.3113)

Finiture di pregio, a breve distanza al centro

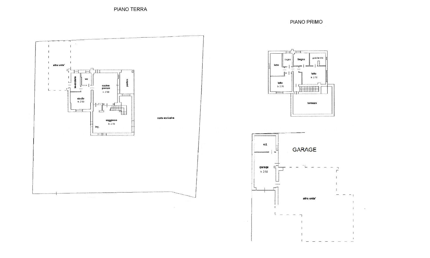
Bardolino - In posizione panoramica con magnifica vista lago, vendesi prestigiosa villa di recente costruzione in un esclusivo complesso residenziale di ville completamente recintato. Disposizione: Soggiorno, cucina, camera, bagno e lavanderia al piano terra, camera padronale con cabina armadio e bagno, ampio terrazzo panoramico, 2 camere e bagno al piano primo, oltre a garage e posti auto esterni. Finiture di alto pregio quali infissi in legno interno e alluminio esterno a triplo vetro, domotica completa, zona notte blindata, riscaldamento a pavimento e climatizzazione in tutti i locali, impianto solare / fotovoltaico con pompa di calore, fibra ottica a 1.000 mb/s, cucina esterna semi professionale, videosorveglianza da cellulare + impianto condominiale. Ampio garage oltre a posti auto esterni. Raggiungibile a piedi dal centro del paese. Piscina e campo di calcetto condominiali. Possibilità di edificare piscina privata. Classe Energetica: "A3" (60.47 kWh/m2/anno)

Maggiori informazioni?

Telefonaci +39 045 62.12.610
oppure compila la richiesta:



.